6946 N Frankfort Rd
Thorntown, IN 46071

Scroll to Content

Details

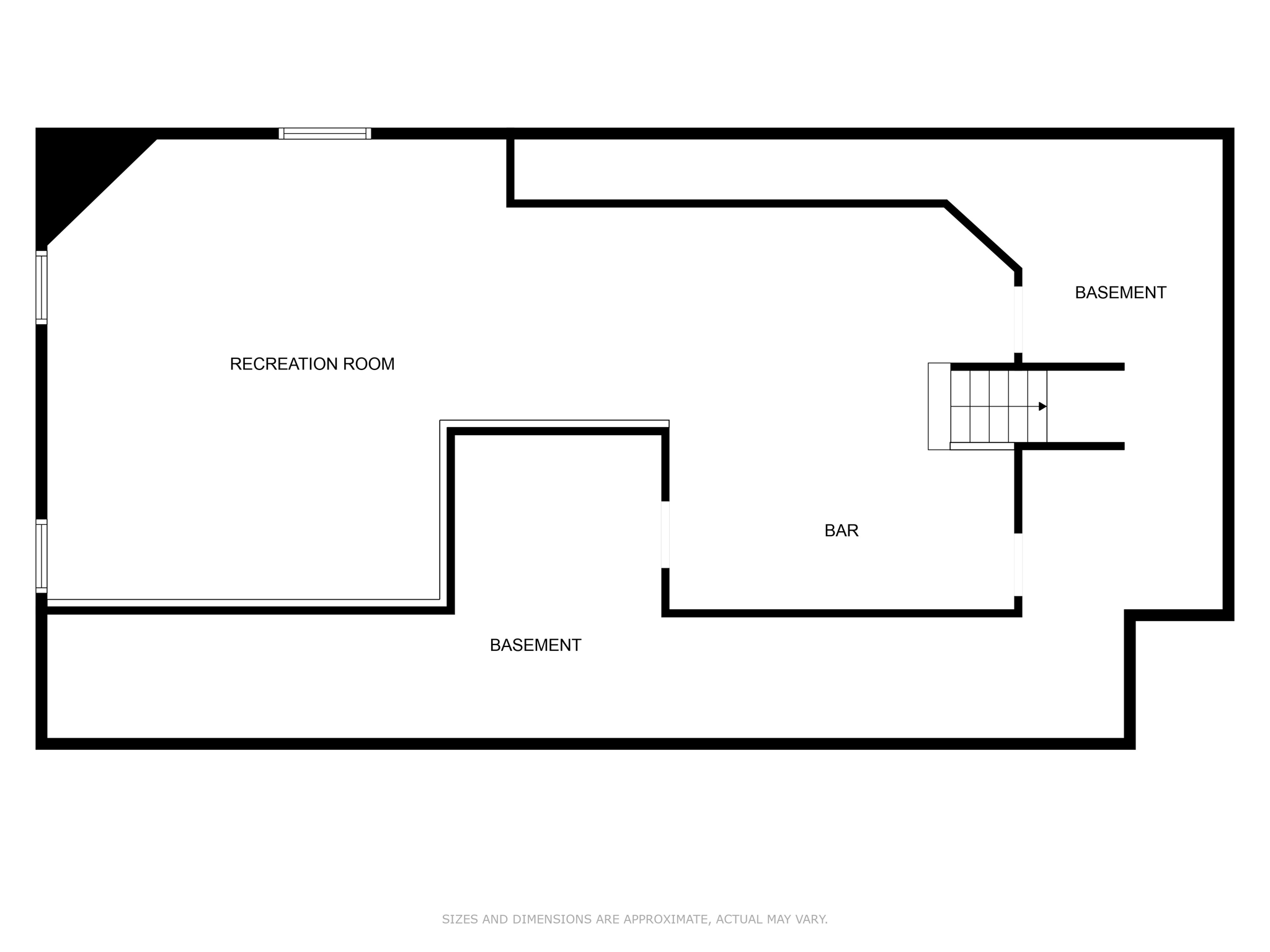
Enjoy tranquility and escape to the country! So many great features in this 3 Bedroom, Brick Ranch with 2 full baths, 3 car attached garage, full basement, geothermal system, whole house updated to Pex, and an abundance of storage all situated on 2.5 Acres with a Barn in Western Boone Schools! Fabulous use of reclaimed barn wood, creates a warm rustic, cabin feel with accent walls, barn doors and beams. Updated Sunken Family Room, currently used as an office w/laminate flooring and shiplap, crown moulding. Laundry Room w/floor to near ceiling built-ins cabinets, basket cubby, boot bench w/storage, sink, washer & dryer! Living room with picture window overlooking the front yard. Kitchen updates include Samsung SS appliances, new countertop, farm sink and a large window to watch over the back yard! Dining/Hearth Room with brick wood burning fireplace, sliding glass door that exits to the patio and tree-lined back yard! On the patio, a Built-in Blackstone Grill and hot tub! Chain-link 5 ft. fenced portion of the back yard includes an area intended for your firepit, roast some marshmallows! Some newer windows throughout. The basement is like stepping into your favorite local place to meet friends. Rustic bar (plumbed for sink), drink rail, pool table, daylight windows. Fun and relaxing. Finished 3 car garage with floor drains, insulated garage doors, workbench. So much to see and appreciate, don't forget to check out the barn, perfect for your farm animals. Easy access to 65/52/47, easy commute to Lebanon Leap District, Indy, Frankfort, Lafayette. America's Preferred Buyer's Home Warranty Included.

  • $390,000
  • 3 Bedrooms
  • 2 Bathrooms
  • 3,328 Sq/ft
  • Lot 2.5 Acres
  • 3 Parking Spots
  • Built in 1967
  • MLS: 21971973

Images

Floor Plans