4005 Wellington Wy, Plainfield, IN 46168
Toggle Navigation
Images
Floor Plans
Map
4005 Wellington Wy
Plainfield, IN 46168
Scroll to Content
Images
Slideshow
Photo Grid
Hide
Previous
Next
Show more
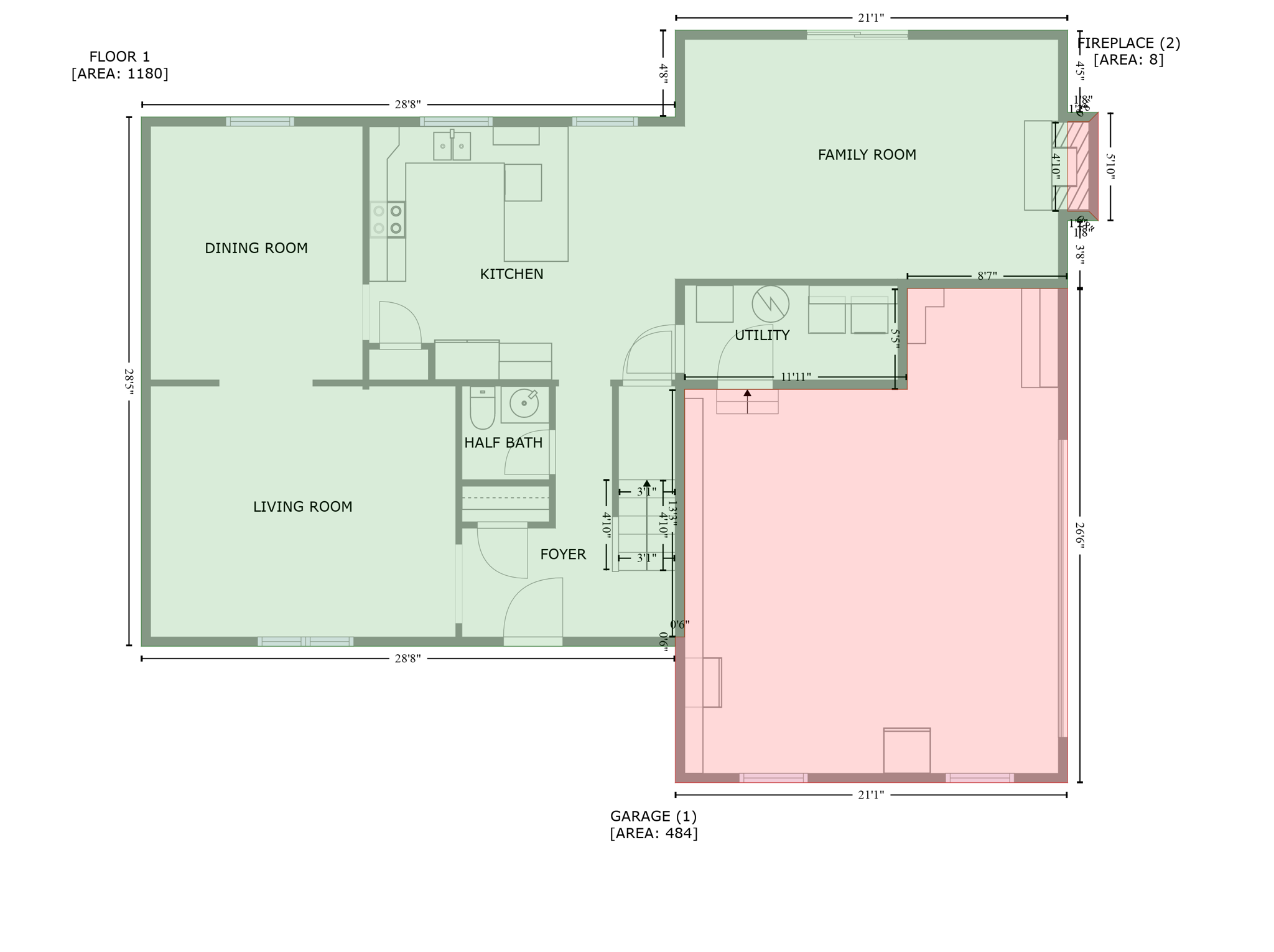
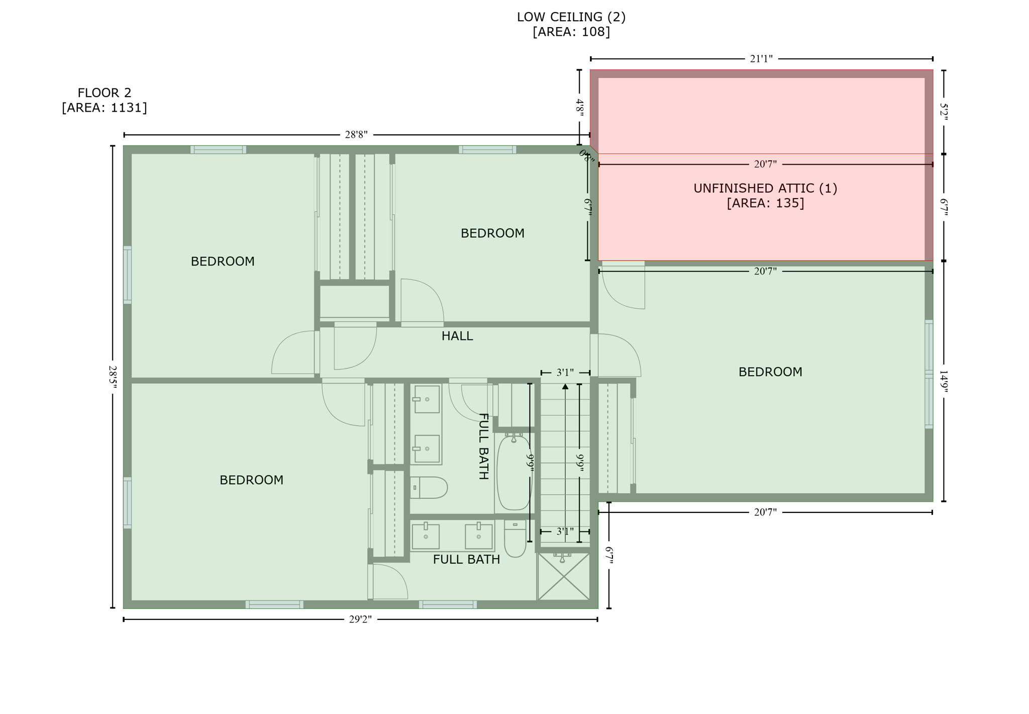
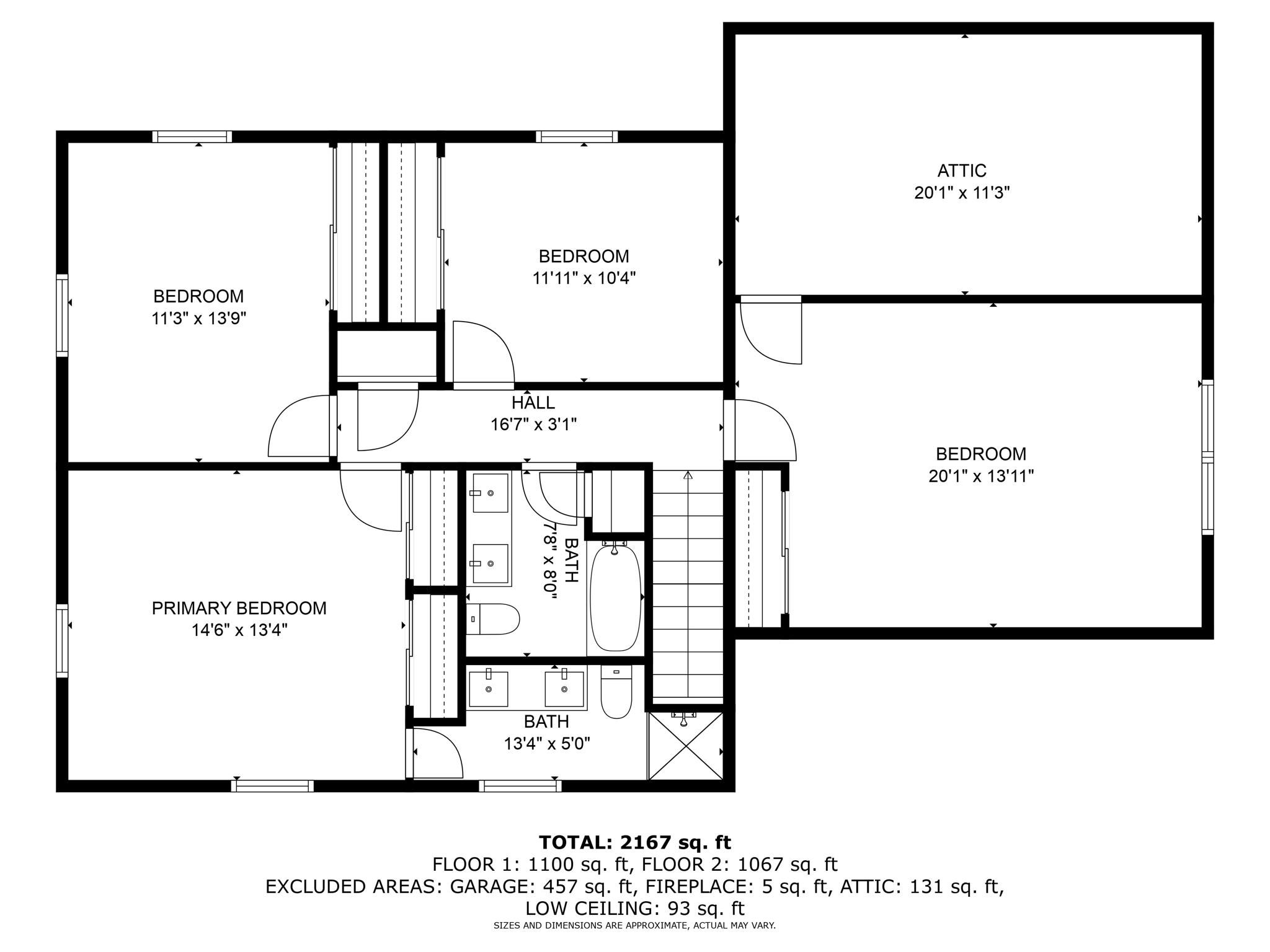
Floor Plans
Slideshow
Photo Grid
Hide
Previous
Next